Im Hannoverschen Stadtteil Döhren wurde eine Häuserzeile mit sechs Dachgeschossen ausgebaut.
Im offenen Wohn- und Kochbereich wurde die Kehlbalkenlage erneuert und bis in den First geöffnet.
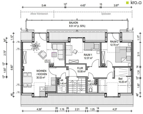
Grundrissaufteilung der Dachgeschosswohnung
Schnittzeichnung
Es wurden insgesamt sechs Dachgeschosse ausgebaut.
Badezimmer in der DG- Wohnung
Während der Wohn- und Kochbereich bis in den First geöffnet wurde, entstand über den anderen Räumen eine zusätzliche Fläche im Spitzboden.